


From Yes, to I Do
Congratulations on Booking your Special Day with Spencer's.
Welcome to your exclusive wedding link, a helpful reference tool for your planning. Included in this document are details covering:


Our Guide
Planning with Pearle
As we are busy working through the upcoming weddings, your dedicated Consultant will be available to you starting at your first details meeting 6 months prior. Please see the schedule of appointments outlined below and what will be covered at each step of your planning.
As a Pearle Weddings couple, we are pleased to offer you a preferred room rate and exclusive ‘guaranteed room block’ at The Pearle Hotel & Spa. Dates move quickly, secure yours today – reservations@thepearlehotel.ca
Details Appointment
6 months from wedding date
Our Spencers coordinating team will reach out to book this appointment for you. We will walk you through timelines, your floor plan, arrival details, vendor and décor details and book your menu tasting, rehearsal & final details appointment.
Final Details Appointment
4-6 weeks from wedding date
Complete any items that were still being discussed at your details appointment. Finalize your menu and late-night selections and wrap up any loose ends at the venue so you can feel confident about your upcoming day.
Final guest count due
10 days prior to your wedding date.
Final payment due
10 days prior to your wedding date – We accept certified cheque, bank draft or wire transfer.
Certified Cheques or Bank Drafts to be made payable to Spencer’s at the Waterfront.


Venue Details
The Observatory.
Seating Capacity: 120
- 4:30PM Ceremony
- 5:00PM – 6:30PM Cocktail Hour
- 7:00PM Dinner
- Bar last call is at 12:30AM
- Music plays until 1:00AM
- All items need to be removed the evening of the event by 2:00AM
*If your timing is different than what is listed above, please refer to your contract for the particulars of your timing.
Venue Details
Cocktail Reception in The Solarium
Room Rental Includes:
- 3 cruiser tables
- Soft seating available around periphery of room
- Coat check
- Gift table

Dinner & Dance in The Observatory
Room Rental Includes:
- Folding tables (4ft, 6ft and 8ft available)
- Silver Chiavari dining chairs
- White linen napkin and floor length linen tablecloth
- Wine glass and water glass
- Bread & butter plate and
- dinner plate
- Silver cutlery
- White porcelain floor
- Printed dinner menu
*As we are committed to reinvesting and bettering our properties, some of these inclusions and details are subject to change. Your Consultant will walk you through any pertinent updates at the time of your detail’s appointment.

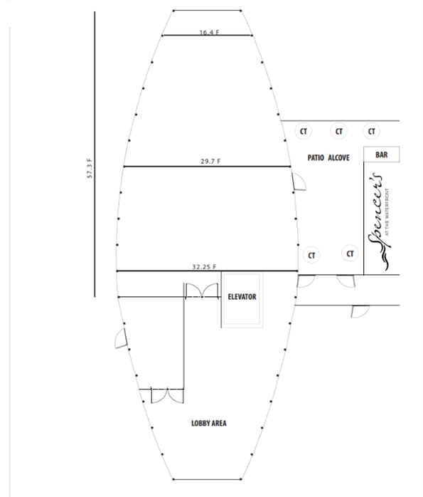
Floor Plan & Décor Considerations.
Audio Visual
The Observatory is equipped with a built-in sound system for preferred vendors. A wireless microphone & podium will be provided for your speeches. A TV and stand are available at additional cost of $250.00. For further information on slideshow formats and AV devices, please follow the link below:


Parking
There are three lots available for parking around Spencers.
The West Lot, directly beside Spencers, becomes exclusively for the use of Spencers guests after 4pm daily.
Room Set-Up
Please review custom floorplan created at the time of booking. Your consultant can provide further details on customization and head table options 6 months prior to your wedding date at your details meeting.
Details
- The tables in house are 4ft, 6ft and 8ft long, and 30” wide.
- Highchairs are available for your use.


Dimensions
Ceiling Height – 30’
Room Accessibility
The Observatory will be available the day of your wedding by 2:30PM for décor placement. If an earlier décor time becomes available, your Consultant will let you know.
Vendors can access The Observatory directly through the side entrance located on the east side of the building.

Décor Restrictions and Considerations.
Décor Restrictions and Considerations
Spencers does allow for real candles but requires that the vessel be 1” higher than the flame, so that it is contained. We do not allow for tapered candles unless accompanied by the glass hurricane cover. Please do not place more than 10 candles per table. No petroleum-based candles allowed. No Dancefloor Decals will be permitted.
- Spencers does not permit any decorative elements to be adhered to the windows or walls.
- Indoor smoke machines and indoor fireworks are not permitted.
- If you are planning on including a ‘sparkler sendoff’, please ensure you have a bucket filled with sand so guests can dispose of the used sparkler safely.
Client Supplied Place Settings and Linens
If you are planning on ordering custom charger plates, glassware, cutlery, plateware
and linens, these items would need to be delivered the day prior to ensure enough time to set the room and taken home the evening of the wedding. We recommend ordering 5% extra for your cutlery and linen napkins. Please note Spencers cannot be held responsible for any missing items.
Décor Drop Off
Non-perishable items such as your card box, guest book and seating chart may be delivered the day prior to your wedding at the rehearsal or during a scheduled décor drop off. This can be booked with your dedicated Special Event Consultant during your details meeting. Perishable items such as your wedding cake and flowers must be delivered the morning of your wedding.
Wedding Favours
Couples are not permitted to bring wedding favours that contain alcohol or cannabis onsite.

